Salg
Boligprosjekter
Prosesser
Aktuelt
Om oss
Kontakt
Solid Dale Malo
Myrbostadvegen 72
6440 Elnesvågen
Hatlebakken Nedregård | 6-mannsbolig Hus 2 | 5 SOLGT
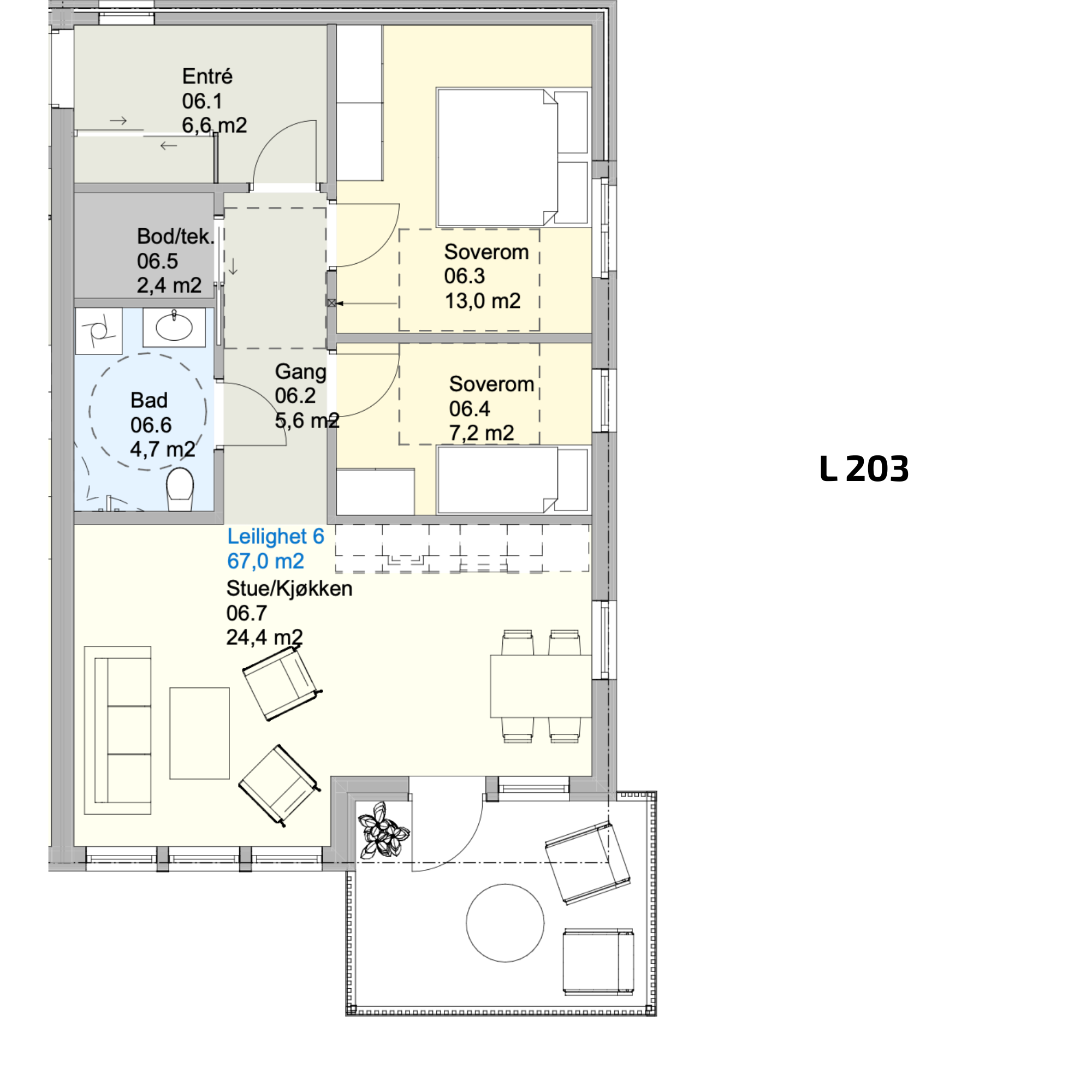
H2 Leilighet 203
Pris: 3 650 000 kr
Omkostninger: 28 145 kr
Totalpris: 3 678 145 kr
Primærrom: 66 m²
Bruksareal: 66 m²
Soverom: 2
Rom: 3
Etasje: 2
Bolig: 6-mannsbolig Hus 2, Leilighet 203
Last ned prospekt
Last ned prisliste
Last ned reguleringsplan
Last ned reguleringsbestemmelser
No items found.
Meld interesse
Navn *
Telefonnummer *
E-post *
Jeg samtykker til å bli kontaktet av Solid Dale Malo med informasjon om boligbyggingsprosjekt på:
Mobil
E-post
Jeg har lest og aksepterer Solid Dale Malos
personvernerklæring
*
Tusen takk!
Din henvendelse er mottatt, og vi vil kontakte deg snarlig.
Beklager! Noe gikk galt ved innsendelsen av skjemaet. Vennligst prøv en gang til.